Walk More. Experience More.
Live Bradbury Square.
Priced from $1.3M
16 New Townhomes in the Heart of Arlington.
Bradbury Square is a limited collection of 16 new townhomes located just off Columbia Pike in the heart of Arlington. Beautifully designed with functional layouts, refined finishes, and a focus on low-maintenance living, each home is tailored for the way people live today. With only 16 homes, the community offers a more intimate and thoughtfully scaled setting.
Thoughtfully Crafted Homes
Priced from $1.3M
Designed for elevated living, each home at Bradbury Square balances refined finishes with practical, everyday functionality. The result is a space that feels intuitive, comfortable, and built to perform over time.
Refined Interiors
Open-concept layouts maximize space, natural light, and flow between living areas. Kitchens are designed for both everyday use and entertaining, with carefully selected materials and finishes that feel refined without being overdone.
Indoor-Outdoor Living
Private rooftop terraces provide an extension of the living space - ideal for relaxing, entertaining, or enjoying views of the surrounding neighborhood. Select homes offer additional opportunities for outdoor living.
Modern Convenience
Each home includes features that support ease of living, from two-car garages with direct access to integrated smart home technology and energy-efficient systems designed for long-term performance. Certain models also offer optional elevators.
Every detail has been considered to create homes that are as functional as they are refined.
Two distinct floor plans designed for flexibility, comfort, and modern living.
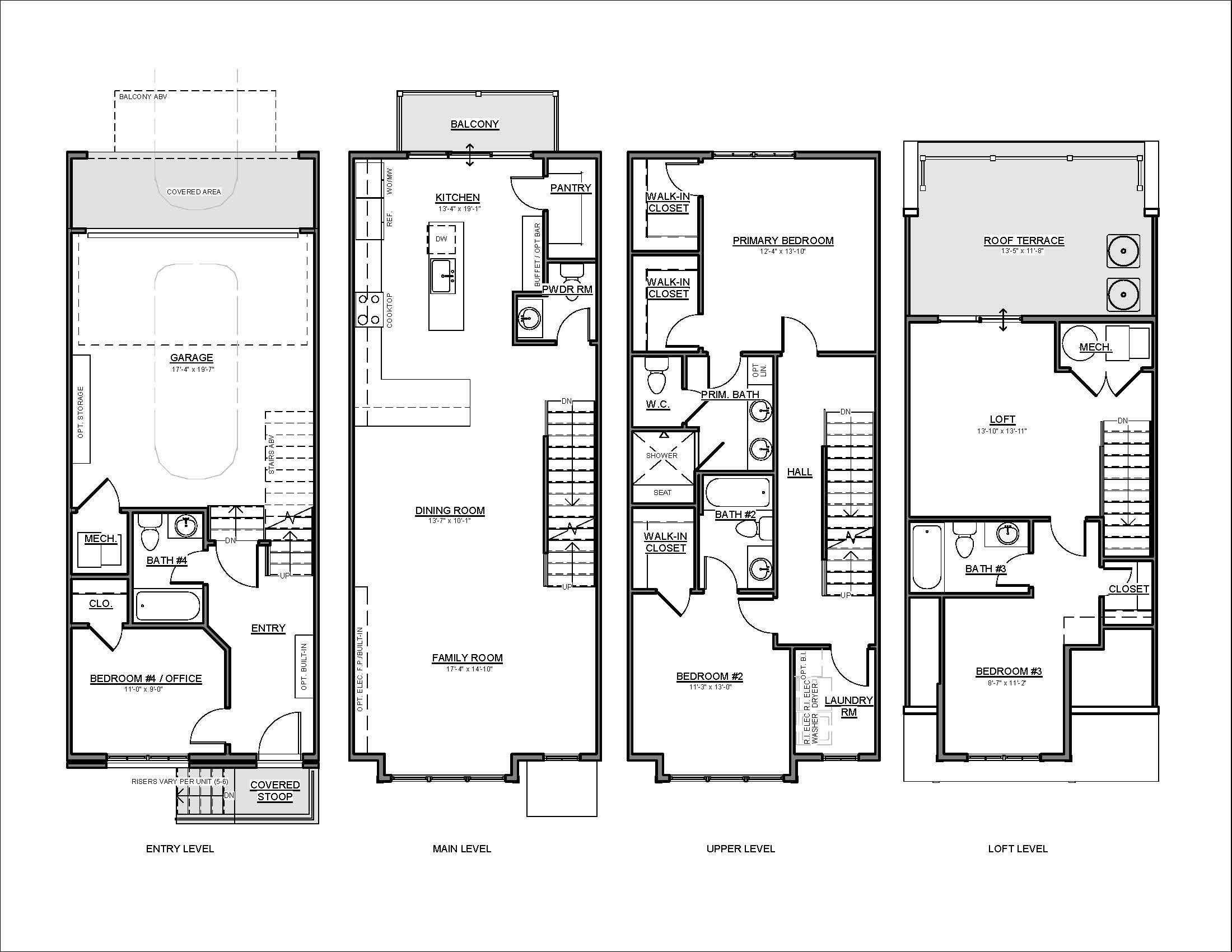
The Monroe
Enhanced Convenience & Indoor-Outdoor Living
Designed for both everyday convenience and long-term flexibility, The Monroe features a highly functional layout with open, connected living spaces across multiple levels. The main living floor is anchored by a spacious kitchen and dining area that flows seamlessly to a private balcony - creating a natural extension for outdoor dining or morning coffee.
An optional elevator provides easy access to every level of the home, offering added comfort and adaptability over time. A flexible entry-level bedroom or office, along with an upper-level loft and rooftop terrace, creates multiple living areas that can evolve with changing needs.
2-Car Parking with Garage
4 Bedrooms, 4.5 Baths
Main Level Balcony
Rooftop Terrace
Optional Elevator
Approximately 2,396 sq ft
The Parker
Flexible Living & Everyday Functionality
The Parker offers a wider, well-balanced layout designed for comfort and everyday ease. The main living level provides a more expansive interior flow, with a spacious kitchen, dining, and family area that feels open, connected, and highly functional.
Designed with flexibility in mind, the layout includes adaptable spaces that can serve as a home office, guest suite, or additional living area. There is also an optional five bedroom layout. A rooftop terrace and upper-level loft provide additional room to relax or entertain, creating a home that supports a variety of lifestyles.
2-Car Garage
4 Bedroom, with OPTIONAL 5 BED PLAN
4.5 Baths
Kitchen with Buffet
Rooftop terrace
Approximately 2,417 sq ft
Bradbury Square Site Plan
Two distinct models - some with optional elevators
2300 Ninth Street South
Arlington, VA 22204
Well - Appointed Features
-

Refined Interiors
Carefully selected finishes and materials throughout
Spacious kitchens designed for both everyday use and entertaining
Open layouts that maximize natural light and flowSuburban serenity with urban accessibility
-

Indoor - Outdoor
Private rooftop terraces for relaxing or gathering
Select homes with main-level balconies
Seamless connection between indoor and outdoor spacesOpen kitchen, dining, and family room
-

Easy Living
Low-maintenance design for ease of ownership
All-electric homes designed for efficiency and EV-ready garages to support electric vehicle charging
Energy-efficient systems designed for long-term performance
The Neighborhood: Penrose
Bradbury Square is located in the heart of Penrose at 2300 Ninth Street South, one of Arlington’s most established and connected neighborhoods.
Defined by tree-lined streets, a mix of architectural styles, and a strong sense of community, Penrose offers a residential setting that feels both grounded and enduring.
At the center of the neighborhood, Penrose Park serves as a true urban oasis—offering open green space, recreation areas, and a natural place to gather just moments from home.
Just one block away, Columbia Pike offers a vibrant mix of local restaurants, cafés, and neighborhood-serving retail - creating an active, everyday destination.
Nearby parks and trails, including bike paths along Four Mile Run, offer opportunities for recreation, commuting, and connection throughout the area.
Ongoing investment along the corridor, including the redevelopment of the former Fillmore Gardens Shopping Center at 2601 Columbia Pike site into “The Elliott”, a new mixed-use community with residential and retail, will continue to enhance the surrounding area.
Connected Living
Penrose offers convenient access to everything across the region.
I-395, Route 50, and key transit routes provide direct connections to Washington, D.C., the Pentagon, National Landing, and Amazon’s HQ2.
Metro access via the Blue and Yellow Lines, along with ART and Metrobus service, makes commuting and getting around simple and reliable.
Discover Bradbury Square
With only sixteen residences, Bradbury Square offers a more intimate and well-designed townhome community in the heart of Arlington.
For more information on availability and floor plans, connect with our team to learn more.
Bradbury Square is a community by BCN Homes
Images and renderings are for illustrative purposes only and may not represent the final design, materials, finishes, or landscaping of the completed homes. Renderings, floor plans, and photographs are conceptual in nature and subject to change without notice. All features, specifications, and dimensions are approximate and may vary from the final constructed product.